| ★1LDKタイプ・2.5万円のお得な家賃のお部屋です・・・! |
 |
住 所: |
札幌市東区北39条東2丁目 |
| 交 通: |
地下鉄南北線 「麻生」 徒歩16分
地下鉄南北線「北34条」 徒歩18分
|
| 家 賃: |
2.5万円 |
| 管理費: |
なし |
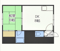
| 間取り: |
8-6帖 |
| 駐車場: |
屋根付き 無料 |
| 敷金/礼金: |
1ヶ月分 /
なし |
構 造: |
鉄筋 |
| 築年数: |
1983/7 完成 |
総階/空階: |
3階建て3階部分 |
| 取引態様: |
仲介/仲介有料 |
定期借家: |
なし |
| 設備等:
プロパンガス・照明・収納・フローリング・浴室・シャワー・給湯・浴トイレ別・シャワー付トイレ・洗濯機排水口・最上階・住宅保険(要加入)・単身者可・二人入居可・子供可 |
| 最寄施設:
サンクス(ATM) ツルハ 北海道銀行ATM ラルズ ローソン(ATM) セブンイレブン(ATM) 北洋銀行ATM マックスバリュ サッポロドラッグストア 郵便局 セイコーマート(ATM) |
|
問い合せ先:
ビッググループ麻生南口店・(有)アクトプラス |
| 住 所 / |
札幌市北区北38条西4丁目1-15 ちゃいるどハウス1F |
| 所在案内 / |
地下鉄南北線「麻生」駅 8番出口より徒歩1分 |
| mail / |
azabu-minami@act.kensakun.net |
|
| 電 話 / |
011-708-3333
|
| FAX / |
011-708-3311 |
| 営業時間 / |
10:00〜20:00 |
| 定休日 / |
年中無休 |
|